logo

Domingo, 16 de Noviembre de 2025

80

12°

Punta del Este Parcialmente soleado

Ventas

A233 Tiburón Terrazas Punta del Este: simplemente espectacular.

English | O português é falado | Click sobre la foto para ver galería

 

Tener la firma del Arquitecto Internacional Mario Roberto Alvarez en un proyecto ya es sin duda apostar a un éxito seguro en desarrollos inmobiliarios.

Si a lo anterior le sumamos un lugar excepcional como es el final de la Rambla de la Playa Brava, sobre la desembocadura del Arroyo Maldonado, teniendo las mejores casas de La Barra en frente, un barrio de apartamentos de lujo y el emprendimiento tiene todo, la pregunta es: que unidad quiere reservar?

Solamente 100 apartamentos en 30.000 m2. de jardines, servicios, circulación, amenities, y todo lo demás es vista, insuperables vistas al mar.

Pocos proyectos pueden hacer sentir tantas sensaciones juntas, éste es uno de esos que gusta, enamora, enloquece con sólo verlo.

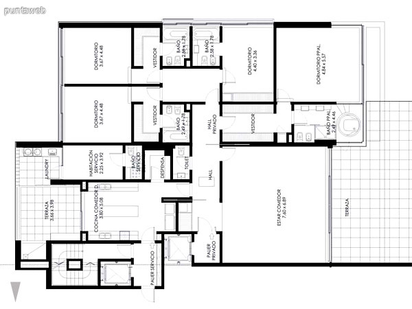
Metrajes

  • Superficie construida propia

     

    282 

  • Superficie construida

     

    341 

  • Superficie construida total

     

    382 

  • Superficie del terreno

     

    30000 

Comodidades

  • Capacidad

    Plantas para 9 o 10 personas cómodamente. 

  • Suites (Dormitorio + Baño)

    Todos los dormitorios son suites, tres de ellas con vestidor, baños con bañeras o hidromasajes, completos de excelentes dimensiones.

    Cada suite con su baño completo, excelentes materiales, diseño, griferías, artefactos, todo acompaña al proyecto en sus detalles.
    Revestidos en porcelanato importado de alta calidad, mesadas de granito y placard. 

  • Toilettes

     

    En Hall de recepción del apartamento, se accede por palier privado y luego distribuye a las demás áreas del apartamento. 

  • Living

     

    De más de 50 m2. integra al comedor, con aventanamiento de más de 7 metros de ancho el cual accede a la terraza principal. 

  • Comedor

     

    Integrado al living, existe además comedor diario en cocina por sus amplias dimensiones. 

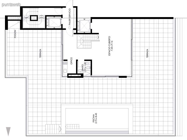
  • Terrazas

    Terraza principal al frente y al ser apartamento semipiso pasante de lado a lado del edificio, terraza de servicio con zona de laundry propia. 

  • Cocina

     

    De gran tamaño, aprox. 18 m2. con doble mesada, isla en el medio que permite ser comedor o desayunador, preveé espacios generosos para muebles y electrodomésticos.
    Campana con extractor sobre anafe y horno eléctrico. 

  • Dormitorio de Servicio

     

    A continuación de la cocina, pasando por la terraza de servicio y en zona de lavadero, de correctas dimensiones y del nivel acorde a la propiedad. 

  • Baño de Servicio

     

    Con ducha dimensiones estandar. 

  • Lavadero

     

    Propio en el apartamento en terraza de servicio, con amplitud para máquinas y tendido de ropa. 

  • Teléfono

     

    Se preveé conexiones a tales fines. 

  • Calefacción

     

    Losa radiante eléctrica individual por apartamento y ambientes, además de previsión de conexión para Aire Acondicionado. 

  • Sistema de TV

     

    Se preveé conexiones para cable. 

  • Acceso a Internet

     

    Se preveé conexiones para internet. 

  • Garage

     

    Una unidad por apartamento más una baulera. 

  • Vistas

     

    Impresionantes, la desembocadura del Arroyo Maldonado en el Océano Atlántico, conjugado con las residencias multicolores de La Barra en la margen opuesta.
    Hay noches donde la luna llena sale en éste lugar y parece que se puede tocar con las manos, increíble pero cierto. 

Servicios del edificio

  • Portería

     

    Encargado del edificio, control, supervisión del mismo. 

  • Servicio de Mucamas

     

    Previsión del mismo según funcionamiento interno (a confirmar). 

  • Servicios de Seguridad

     

    Control las 24 horas, de ingreso y salida de personas.
    Circuito cerrado de TV, perímetro cercado, sistemas de control de accesos activo. 

  • Comunicaciones

     

    Central telefónica, recepción, Wi Fi en zonas comunes de Planta Baja y Piscina. 

  • Servicios de Spa

     

    Fitness Center con Gimnasio, Spa, Salón exclusivo para deportes. 

  • Piscinas

    Piscina de agua salada climatizada, piscinas abiertas con vista al Océano y La Barra, piscinas propias en apartamentos de Planta Baja o en Pent House. 

  • Salón de juegos

    Varios salones de uso múltiple, con diferentes usos. 

  • Gimnasio

     

    Exclusivo con equipos de última generación. 

  • Lavandería

     

    Laundry para huéspedes del edificio, Lavadero de autos además. 

Rincón del Indio

Entre el Barrio del Golf y antes del puente ondulante de ingreso a La Barra, se encuentra el Barrio de Rincón del Indio con edificaciones bajas sobre la Rambla de playa Brava e inmediatamente residencias una vez que dejamos las primeras filas al...   +  

Ubicación

Ingresar una propiedad para Venta

Si Usted es propietario puede brindarnos datos de su propiedad para que nuestro operador inmobiliario pueda comercializarla en Venta.

Para ello se pondrá en contacto con Usted a los efectos de visitar la propiedad, evaluarla, sacarle fotos y publicarla gratuitamente en nuestra sección de destacados.

Ingresar