logo

Martes, 18 de Noviembre de 2025

80

12°

Punta del Este Parcialmente soleado

Ventas

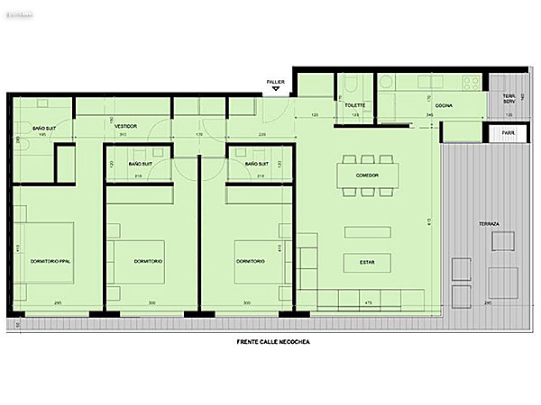
A1893 Altos de San Rafael: apartamentos de 1, 2 y 3 dormitorios en dos bloques con amenidades en San Rafael a metros de la playa Brava.

English | O português é falado | Click sobre la foto para ver galería

 

Apartamentos de dos y tres dormitorios distribuidos en dos bloques en entorno enjardinado en San Rafael a metros de la playa Brava.

Altos de San Rafael es un desarrollo de Justany consistente en 48 apartamentos, 24 por bloque, con terrazas y parrillero propio - los apartamentos en planta baja tienen zona parquizada propia - y 61 garages en subsuelo.

Amenidades acordes a la calidad del desarrollo: gimnasio totalmente equipado, dos piscinas, una cubierta y climatizada y otra exterior con deck, parrillero, salón multiusos exterior y área infantil.

Solicite brochure completo del desarrollo.

Comodidades

  • Parrillero en el apartamento

     

    Todos los apartamentos cuentan con parrillero. 

  • Garage

     

    61 espacios de garage en total, todos ubicados en el nivel de subsuelo. 

  • Vistas

     

    Al entorno natural del barrio residencial con algunos apartamentos con vistas directas al mar. 

Servicios del edificio

  • Servicios de Barbacoa

     

    Una barbacoa en planta baja completamente equipada.

    Habrá un espacio multifuncional en el exterior cubierto con una pérgola. 

  • Piscinas

    Una piscina cubierta y climatizada y una piscina exterior con espacio de deck para solarium. 

  • Salón de juegos

    Columpios y juegos infantiles para que los niños se diviertan y conozcan nuevos amigos. 

  • Gimnasio

     

    Un lugar donde poder seguir practicando tu rutina de ejercicios o empezar una nueva. 

San Rafael

En la década del 50 para descentralizar la zona de la Península, se inaugura el Hotel San Rafael, edificio emblema del barrio, donde acompañan residencias de muy buen porte, jardines contínuos que sólo separan cercos vivos o lomadas, mucho bosque y...   +  

Ubicación

Otras opciones similares

Ingresar una propiedad para Venta

Si Usted es propietario puede brindarnos datos de su propiedad para que nuestro operador inmobiliario pueda comercializarla en Venta.

Para ello se pondrá en contacto con Usted a los efectos de visitar la propiedad, evaluarla, sacarle fotos y publicarla gratuitamente en nuestra sección de destacados.

Ingresar